avatar
เดอะ ธาม - The THAM แยกกระทิงลาย นาเกลือ โรงโป๊ะ ตะเคียนเตี้ย - บางละมุง - ตะเคียนเตี้ย
รูปโลโก้ใบประกาศ
โครงการใหม่
บ้าน
เหลือขาย
รูปโลโก้ใบประกาศ

เดอะ ธาม - The THAM

icon-marker2
แยกกระทิงลาย นาเกลือ โรงโป๊ะ ตะเคียนเตี้ย - บางละมุง - ตะเคียนเตี้ย
฿2,000,000
เข้าชม 373 ครั้ง


รูปแบบบ้าน/ประกาศขาย

ข้อมูลเบื้องต้น

ดำเนินการโดย

พีเอส พร็อพเพอร์ตี้ (PS Property)

ประเภท

บ้าน

จำนวนแบบ

1 แบบ

จำนวนยูนิต

ยูนิต

ปีที่เริ่มสร้าง

พ.ศ. 2567

พื้นที่

1 ไร่

รายละเอียดโครงการ

เตรียมพบกับ

บ้านแห่งความสุข

ที่คุณเป็นเจ้าของได้

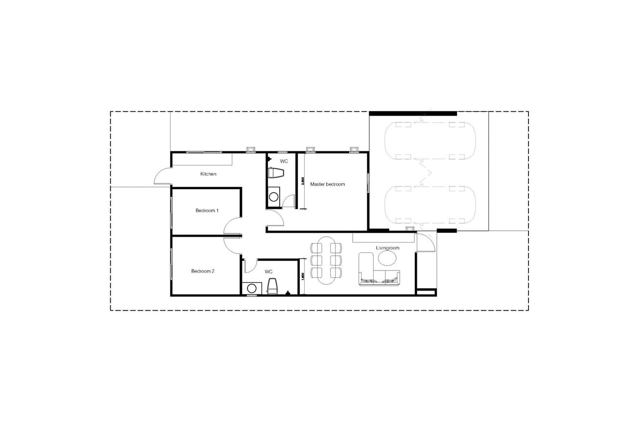
โครงการ The Tham3

บ้านเดี่ยวชั้นเดียว 3 นอน 2 น้ำ 2 จอดรถ

สไตล์โมเดิร์น-มูจิมินิมอล

ราคาเริ่มต้น 2 ล้านต้นๆ

จอง 2 หลังแรกรับส่วนลด 2 แสน

สนใจพรีออร์เดอร์

ติดต่อ 083-6899835

LINE ID : @thetham

รูปโปรไฟล์บริษัท
พีเอส พร็อพเพอร์ตี้
บริษัทอสังหาริมทรัพย์
ติดต่อโครงการ