avatar
ปัณณทรัพย์ 8 หัวหิน - Pannasub 8 Hua Hin บ่อนไก่-แม่เก็บ - หัวหิน - หัวหิน
หน้าแรก
ซื้อโครงการใหม่
ปัณณทรัพย์ 8 หัวหิน - Pannasub 8 Hua Hin
รูปโลโก้ใบประกาศ
โครงการใหม่
บ้าน
เหลือขาย
รูปโลโก้ใบประกาศ

ปัณณทรัพย์ 8 หัวหิน - Pannasub 8 Hua Hin

icon-marker2
บ่อนไก่-แม่เก็บ - หัวหิน - หัวหิน
฿2,950,000 - ฿3,500,000
เข้าชม 1.7K ครั้ง


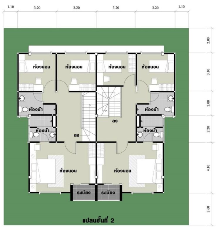
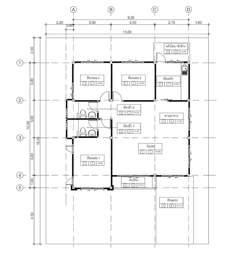
รูปแบบบ้าน/ประกาศขาย

ข้อมูลเบื้องต้น

ดำเนินการโดย

บริษัท ปัณณทรัพย์ กรุ๊ป จำกัด

ประเภท

บ้าน

จำนวนแบบ

2 แบบ

จำนวนยูนิต

118 ยูนิต

ปีที่เริ่มสร้าง

พ.ศ. 2561

พื้นที่

10 ไร่

รายละเอียดโครงการ

โครงการตั้งอยู่ใจกลางเมืองหัวหิน รายล้อมด้วยแหล่งอำนวยความสะดวก อาทิ

ศาลจังหวัดหัวหิน โรงเรียนหัวหินวิทยาคม และโรงพยาบาลกรุงเทพหัวหิน

สิ่งอำนวยความสะดวก

ระบบความปลอดภัย

ระบบความปลอดภัย

  • เจ้าหน้าที่รักษาความปลอดภัย ตลอด 24 ชั่วโมง
  • กล้องวงจรปิด (CCTV)
รูปโปรไฟล์บริษัท
บริษัท ปัณณทรัพย์ กรุ๊ป จำกัด
บริษัทอสังหาริมทรัพย์
ติดต่อโครงการ