ขายอาคารพาณิชย์/สำนักงาน 2 ชั้น 2 ห้องนอน 2 ห้องน้ำ ราคา 3.9 ล้านบาท ในอำเภอวารินชำราบ เทศบาลวารินฯ - วารินชำราบ - คำน้ำแซบ
หน้าแรก
ซื้อบ้านมือสอง
ขายอาคารพาณิชย์สำนักงาน-2-ชั้น-2-ห้องนอน-2-ห้องน้ำ-ราคา-3.9-ล้านบาท-ในอำเภอวารินชำราบ
มือสอง
ขาย
อาคารพาณิชย์
ขายหมด

ขายอาคารพาณิชย์/สำนักงาน 2 ชั้น 2 ห้องนอน 2 ห้องน้ำ ราคา 3.9 ล้านบาท ในอำเภอวารินชำราบ

เทศบาลวารินฯ - วารินชำราบ - คำน้ำแซบ
เทศบาลวารินฯ - วารินชำราบ - คำน้ำแซบ
฿3,850,000
เข้าชม 156 ครั้ง

ข้อมูลเบื้องต้น

ประเภท

อาคารพาณิชย์

ห้องนอน

2

ห้องน้ำ

2

ชั้น

2

ขนาดที่ดิน

30 ตร.วา

สถานะผู้อยู่อาศัย

ว่าง

รหัสประกาศ

DEUBNCB0109001

รายละเอียดอื่น ๆ

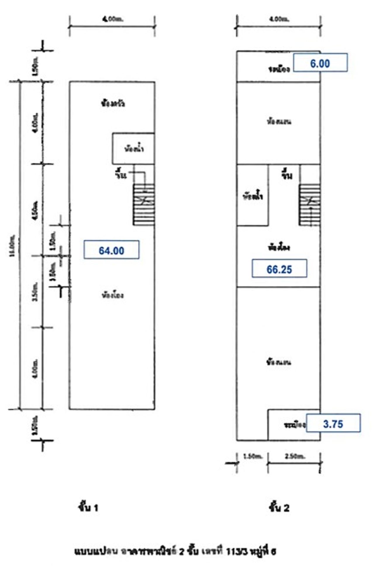
อาคารพาณิชย์ 2 ชั้น ประกอบด้วย 2 ห้องนอน 2 ห้องน้ำ 1 ห้องครัว

รหัสทรัพย์ DEUBNCB0109001

โครงการ อาคารพาณิชย์ 2 ชั้น 1 คูหา

ประเภท อาคารพาณิชย์

เลขที่เอกสารสิทธิ์ 93092

สถานที่ บ้านเลขที่ 113/3 ม.6 ถ.สายวาริน-ศรีสะเกษ ต.คำน้ำแซ่บ อ.วารินชำราบ จ.อุบลราชธานี

จังหวัด อุบลราชธานี

อำเภอ/เขต วารินชำราบ

ตำบล/แขวง คำน้ำแซบ