ขอนแก่น
ขอนแก่น
ลง
ประกาศ
ฟรี
เข้าสู่ระบบ
เข้าสู่ระบบ
สีวลี มะลิวัลย์ - Siwalee Maliwan
ถนนมะลิวัลย์ - เมืองขอนแก่น - บ้านเป็ด
หน้าแรก
ซื้อโครงการใหม่
สีวลี มะลิวัลย์ - Siwalee Maliwan
โครงการใหม่
บ้าน
เหลือขาย
สีวลี มะลิวัลย์ - Siwalee Maliwan
ถนนมะลิวัลย์ - เมืองขอนแก่น - บ้านเป็ด
฿5,450,000 - ฿8,250,000
เข้าชม
4.7K
ครั้ง
รูปแบบบ้าน/ประกาศขาย
กดดูรูปเพิ่ม (1/16)
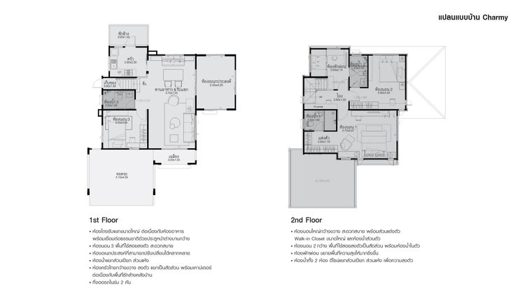
Charmy
เหลือขาย
บ้านเดี่ยว
97 ตร.วา,
165 ตร.ม.
3
3
2
2 ชั้น
ราคาเริ่มต้น
฿8,250,000
คำนวณสินเชื่อ
กดดูรูปเพิ่ม (1/16)
Comfy
เหลือขาย
บ้านเดี่ยว
88 ตร.วา,
153 ตร.ม.
3
3
3
2 ชั้น
ราคาเริ่มต้น
฿7,170,000
คำนวณสินเชื่อ
กดดูรูปเพิ่ม (1/9)
Cozy
เหลือขาย
บ้านเดี่ยว
60 ตร.วา,
137 ตร.ม.
3
3
2
2 ชั้น
ราคาเริ่มต้น
฿5,450,000
คำนวณสินเชื่อ
#
รายการ
ราคา (บาท)
ขนาด
สถานะ
#
รายการ
ราคา
(บาท/เดือน)
ขนาด
สถานะ
ข้อมูลเบื้องต้น
ดำเนินการโดย
บริษัท แลนด์ แอนด์ เฮ้าส์ จำกัด (มหาชน)
ประเภท
บ้าน
จำนวนแบบ
3 แบบ
จำนวนยูนิต
305 ยูนิต
ปีที่เริ่มสร้าง
พ.ศ. 2565
พื้นที่
84 ไร่
รายละเอียดโครงการ
บ้านเดี่ยว ขอนแก่น โครงการ สีวลี ถนนมะลิวัลย์ ขอนแก่น
แนวคิดโครงการ Prestige of Life
สะท้อนรสนิยมการใช้ชีวิตอย่างมีระดับ
สำหรับผู้มองหาบ้านเดี่ยวคุณภาพดีที่สุดในขอนแก่น
สิ่งอำนวยความสะดวก
ระบบความปลอดภัย
เจ้าหน้าที่รักษาความปลอดภัย
เจ้าหน้าที่รักษาความปลอดภัย ตลอด 24 ชั่วโมง
ระบบ Easy Pass เข้า-ออก
กล้องวงจรปิด (CCTV)
การออกกำลังกาย
สระว่ายน้ำ
ห้องฟิตเนส
บริษัท แลนด์ แอนด์ เฮ้าส์ จำกัด (มหาชน)
บริษัทอสังหาริมทรัพย์
ดูแบรนด์นี้เพิ่ม
ติดต่อโครงการ
ลงทะเบียนสนใจ
โทร 1xxx
ติดต่อผ่าน Line
แชทผ่าน Facebook
แจ้งประกาศไม่เหมาะสม
Line
แชทผ่าน
โทร 1xxx